) Вилла Флэт Уайт - СТС-ЭКО

Вилла Флэт Уайт

← К списку проектов

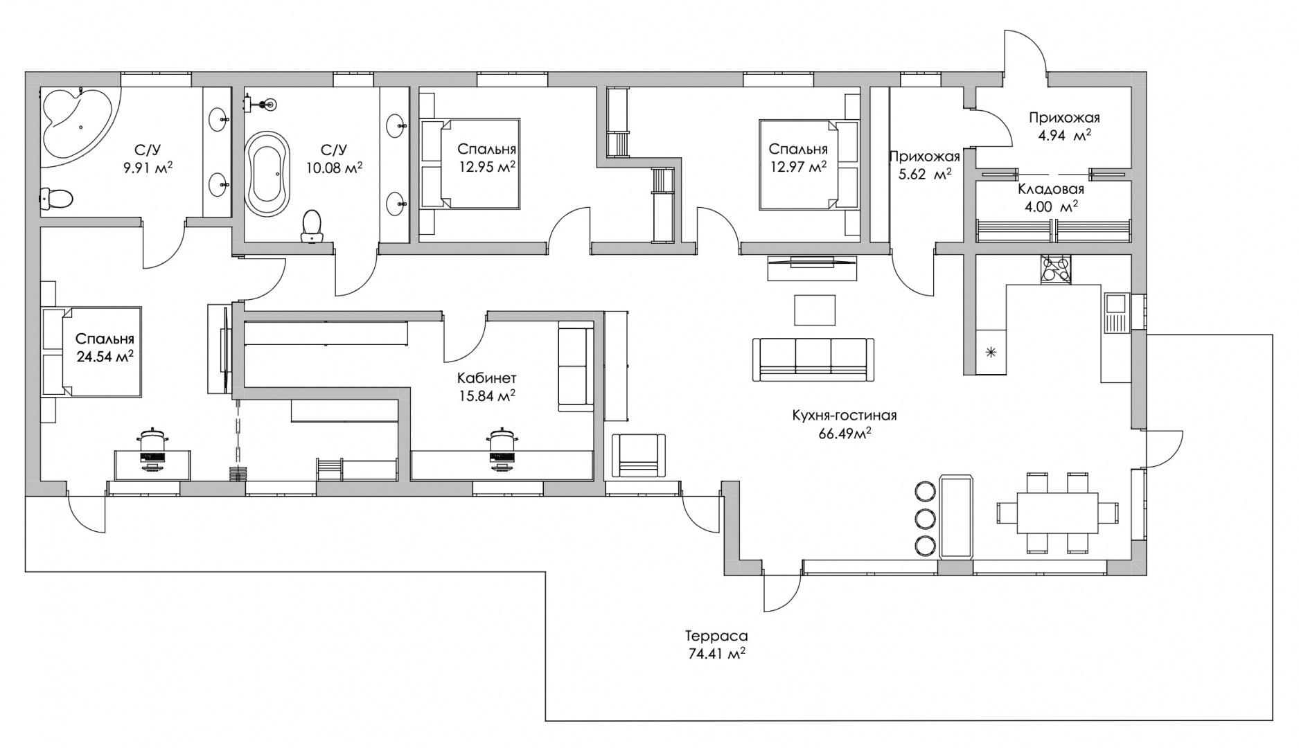
Элегантная современная вилла с плоской односкатной кровлей и панорамным остеклением для большой семьи. Фасад может быть представлен в комбинации штукатурки и планкена лиственницы или термодерева. Оконные системы могут быть как алюминиевыми, так и металло-пластиковыми. Планировочное решение включает огромную кухню-гостинную 66 кв.м, три спальни, одна из которых с мастер-блоком, два просторных сан-узла и отдельный кабинет.

193м2
9.8м x 22.2м
от 12 500 000 ₽


от 0

Планировки